How This Scandinavian-Inspired Extension Honours The Art Deco Architecture

 

How This Scandinavian-Inspired Extension Honours The Art Deco Architecture

Homes

8th of December, 2023

 
 

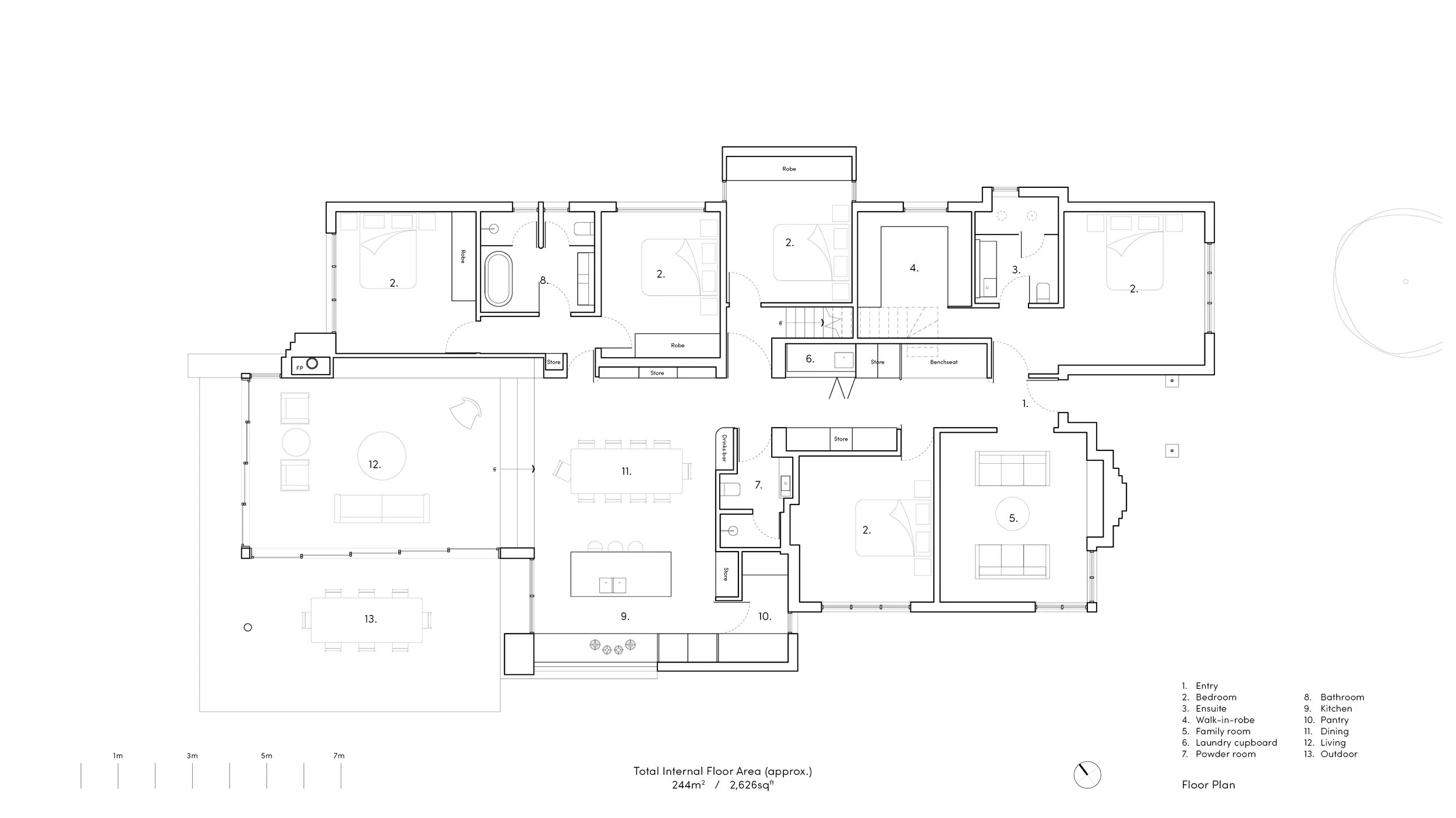
Megowan was approached to transform this Art Deco house in McKinnon, with the owners wanting a more flexible and modern home that connected with the rear garden while still preserving the charm of the original architecture.

The layout was strange, not necessarily because of the ad-hoc extensions, but because the kitchen was in the central hallway, disconnecting you from the dining area. Doing away with the ad-hoc extensions, Megowan set out to design a contemporary extension while working as much with the original structure as possible to rework the existing house.

"When renovating, particularly with a solid brick home like this one, it's important to work within the existing structure as much as possible." Chris Megowan, architect and Director of Megowan, explains. "This allows you to allocate the majority of the resources available to a project to the more high-impact spaces, and obviously, the priority for us was this kind of family space at the rear."

This new family space at the rear features a new kitchen and dining space with a drinks bar and a sunken lounge that seamlessly flows out onto the alfresco area.

The rear extension was influenced by Scandinavian and Mid-Century Modern design, as seen in the light oak flooring, exposed timber rafters, walls of glass, pops of colour, and the sunken lounge.

The original Art Deco architecture is honoured through skirting tiles, bench seating, joinery details, red brick, and the curved pergola at the rear.

"The sunken lounge uses red brick as the flooring, something that Steve and Chloe originally weren't 100% sure about when we first proposed it," Chris recalls. "But now really appreciate it as one of the defining and unique aspects of the home."

Lindsay's success comes from Megowan's ability to add a contemporary extension to this Art Deco home in a sympathetic manner that respects and references the history but still provides for 21st-century family living.

“Steve and Chloe have told us how much they expressed delight in the reactions their guests make when they enter their home." Chris shares. "According to them, their guests' reactions build to a crescendo of sorts by the time they reach the sunken lounge."

Lindsay by Megowan, built by Forma Group.

Production, photography and words by Anthony Richardson.

 
 
 
 

Related Stories

 

Shop

Bring a sense of simplicity to your home.

Previous
Previous

How This Small Off-Grid Cabin Embodies the Idea of Minimalism

Next
Next

How This Architect is Renovating His Own Mid-Century Modern Home