A Modern Family Beach House of Architect-Duo

 

The Modern Family Beach House of Architect-Duo

Homes

November 13th, 2019

 
 

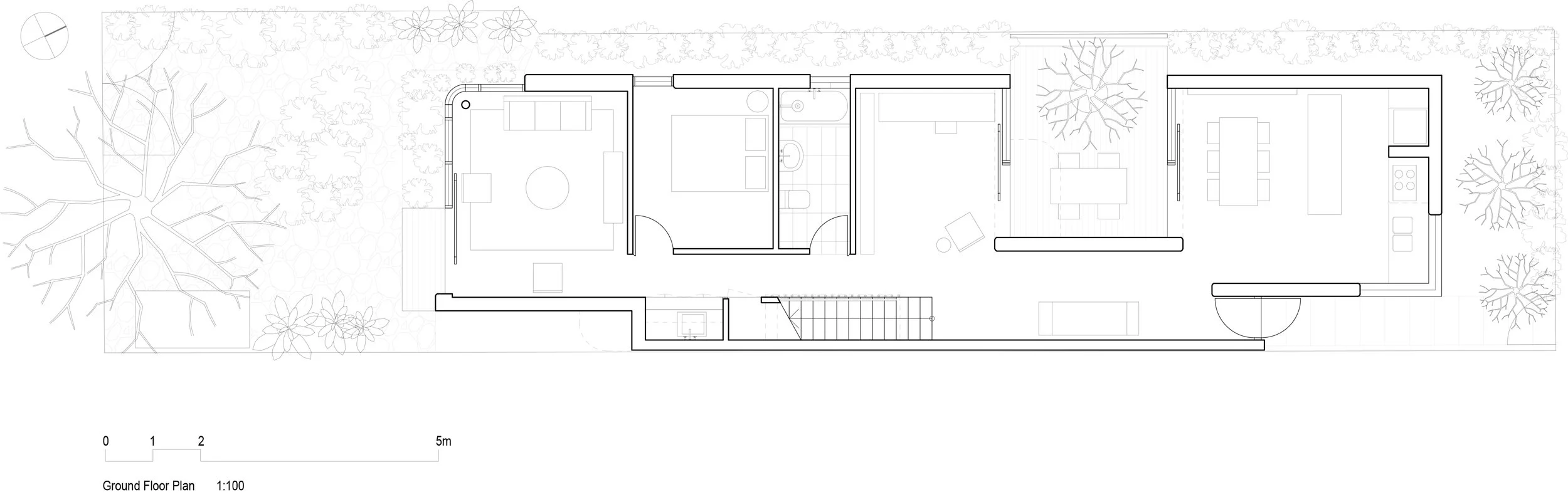
Taking cues from the relaxed 'beach house' vibe, the home of Topology Studio's Amy Hallett and Darren Kaye took a rundown Victorian and started fresh to create an opportunity to springboard their architecture practice.

With their South Melbourne beach house being their own family home, Amy and Darren were able to experiment with ideas and materials that may not have been possible on typical client projects. Located only one street back from South Melbourne beach, their home was designed to express this location with the right material choices, as well as capturing those sea breezes.

Videography by Anthony Richardson.

 
 
 

Related Stories

 
Previous
Previous

10x3 ep03 | Come on a Tiny Apartment Tour with Jack Chen of Tsai Design

Next
Next

An Architect's Own Family Off-Grid Sustainable Home