How This Coastal Home Renovation Reduced Its Construction Waste

 

How This Coastal Home Renovation Reduced Its Construction Waste

Homes

2nd of February, 2024

 
 

A major contribution to the global overall waste is construction, making up nearly 1/3. While there is a lot that can done, an effective approach is being taken by Solomon Troup Architects, where they preserve and retain as much of the existing building fabric as possible without compromising on the design.

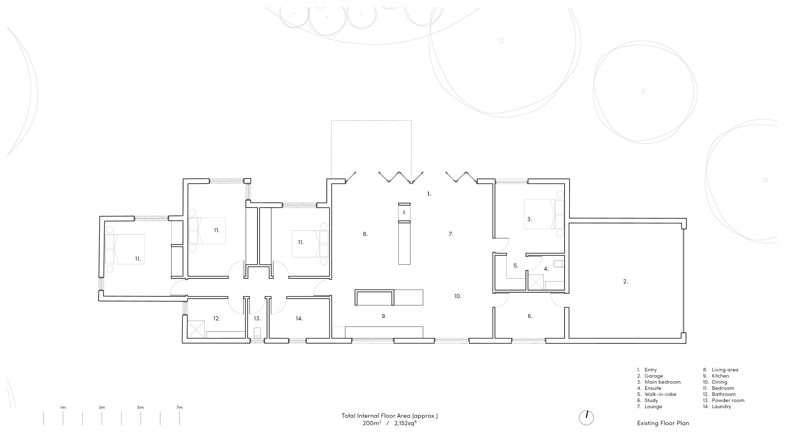
This 1980s project home in Point Lonsdale no longer suited the owner’s needs, and after plenty of discussions, Solomon Troup Architects proposed a simple extension to unlock the potential.

“We securitised the existing floor plan alongside their modest budget, and decided that the best course of action was to retain the kids bedroom wing to the west, and the garage to the east,” Lachlan Troup, architect and Director of Solomon Troup Architects says, “And focus on repairing the central living area and adding a new master bedroom wing.”

Much of the work was focused on reworking the existing living zone, retaining as much of the existing walls as possible. What was once the main bedroom and ensuite was turned into the home’s entry, mudroom and powder room.

“In this project we employed several strategies to drastically reduce the amount of waste, such as repurposing the existing ensuite as the guest powder room.” Lachlan explains. “By keeping the toilet in the same position, we removed the need to cut up concrete for new pipes and plumbing, which reduced costs and also waste.”

The new living zone features a generous green and timber kitchen and two large openings to the north and south to take full advantage of the coast’s cooling southerly winds. 

A new bedroom suite with an ensuite gives the owner a picturesque view of their garden, with operable shutters and venetian blinds to assist with controlling the sun. The new extension is clad in a spotted gum rain-screen, allowing the dwelling to blend into the native landscape.

“An existing building doesn’t have to be ripped down and rebuilt again from the ground up to improve the quality of the building. Existing materials can and should be reused or retained where possible to ensure the waste created throughout a build like this is reduced.” Lachlan says. “Point Lonsdale House is a testament to how even small changes can have a significant impact on the functionality and liveability of a home.”

Point Lonsdale House by Solomon Troup Architects.

Production, photography and words by Anthony Richardson.

 
 
 
 
 

Related Stories

 

Shop

Bring a sense of simplicity to your home.

Previous
Previous

How Mid-Century Modern Design Revolutionised Our Homes

Next
Next

How a ‘Less Is Best’ Approach to the Landscape Design Settled the Off-Grid Home